電動軟密封蝶閥簡介:
電動軟密封蝶閥一般為中線型結構,主要由軟密封蝶閥與電動執行器組成,按不同的連接方式可分為法蘭式和對夾式。其密封形式采用密封結構,具有良好的密封性能(可達零泄露)密封材料為各種橡膠、聚四氟乙烯等。電動軟密封蝶閥一般用于溫度≤200℃,公稱壓力≤1.6MPa的常溫環境和低壓、中壓場所,由于結構特征的限*,不適應耐高溫、高壓及抗磨損等行業。廣泛用于水處理、環保、石油、化工等管道上作調節流量和截流介質的作用。

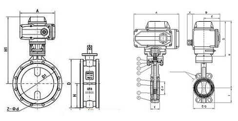
電動對夾式軟密封蝶閥 電動法蘭軟密封蝶閥
電動軟密封蝶閥技術參數:
公稱通徑 |
DN50~DN1200(mm) |
公稱壓力 |
PN0.6、1.0、1.6MPa |
連接方式 |
法蘭式、對夾式連接 |
密封形式 |
軟密封(可達零泄露) |
作用形式 |
開關模式、智能調節 |
溫度范圍 |
丁腈橡膠:-40℃~90℃;氟橡膠:-20℃~200℃ |
閥體材質 |
鑄鐵、碳鋼、不銹鋼304、不銹鋼316 |
適用介質 |
液體、氣體、油品及腐蝕性流體(常溫常壓場合) |
電動軟密封蝶閥性能特點:
1、設計新穎、合理,結構獨特,重量輕,啟閉迅速。
2、操力矩小,操作方便,省力靈巧。
3、分為電動對夾式軟密封蝶閥和電動法蘭軟密封蝶閥。
4、密封件可以更換,密封性能可靠達到雙向密封零泄漏。
5、密封材料耐老化、耐腐蝕,使用壽命長 |
 電動法蘭軟密封蝶閥結構 電動對夾式軟密封蝶閥結構 |
電動軟密封蝶閥密封材料:
材料品種 |
代號 耐**溫度 耐*低溫度 適用溫度 |
氯丁橡膠 |
×或 0rJ 82℃ -40℃ ≤65℃ |
丁腈橡膠 |
XA或orJA 93℃ -40℃ ≤80℃ |
乙丙橡膠 |
XB或orJB 150℃ -40℃ ≤120℃ |
聚四氟乙烯 |
xC、JC或0rF 232℃ -268℃ ≤200℃ |
硅橡膠 |
XD或orJD 250℃ -70℃ ≤200℃ |
氟橡膠 |
× E或orJE 204℃ -23℃ ≤180℃ |
電動軟密封蝶閥和電動硬密封蝶閥的區別:
1、軟密封蝶閥多為中線型,硬密封多為單偏心、雙偏心、三偏心蝶閥結構。
2、軟密封用于常溫環境。硬密封可用于低溫、常溫、高溫等環境。
3、軟密封使用于低壓-常壓,硬密封還可以使用于中高壓。
4、軟密封和三偏心硬密封蝶閥密封性能比較好,三偏心蝶閥在高壓高溫環境下可以保持良好的密封。
電動軟密封蝶閥和電動硬密封蝶閥的優缺點:
軟密封蝶閥的優點是密封性能好,缺點是容易老化、磨損、使用壽命短。
硬密封蝶閥使用壽命長,但是密封性相對比軟密封蝶閥差。
軟密封蝶閥適用于常溫常壓的水處理、輕工、化工等行業工況,硬密封蝶閥多用于供熱、、及煤氣、油品、酸堿等高溫高壓環境。
相關產品: 氣動軟密封蝶閥 電動襯氟軟密封蝶閥 電動襯膠軟密封蝶閥